Gradiatim
Home > Projekti > Soseska Frenga – Objekt 3 – Lamele D, E, F

Na kratko o projektu

 

Gradnjo tretjega objekta v soseski Frenga bomo pričeli v začetku leta 2023.

Objekt se bo nahajal na severni strani obstoječega bloka AB in bo postavljen v smeri vzhod – zahod. Objekt sestavljajo tri lamele (D,E,F), s skupno garažo. Na severni strani objekta so predvidena parkirišča, na južni pa ozeleneli del nad pokrito garažo. Garaža in shrambe so pod celotnim objektom, vkopane do polovice etažne višine, tako da je pritličje dvignjeno nad višino okoliškega terena. Objekt je temeljen na temeljno ploščo, nadzemeljski del objekta je pretežno armiranobetonski, lokalno zidan, medetažne konstrukcije so armiranobetonske plošče, stopnišče je ulito na mestu, armiranobetonsko. Streha nad kletjo je betonska, streha nad mansardo je sestavljena iz betonske plošče na kateri leži toplotna izolacija in kovinska kritina na lesenem ostrešju.

Objekt bo ogrevan s pomočjo geotermalne energije (izvedenih bo 24 geosond globine 150 m1). S pomočjo toplotnih črpalk bo izvedeno ogrevanje celotnega objekta in priprava tople sanitarne vode. Omogočeno bo tudi hlajenje stanovanj, za katerega bo v vsakem stanovanju izvedena predpriprava za namestitev konvektorjev za hlajenje.

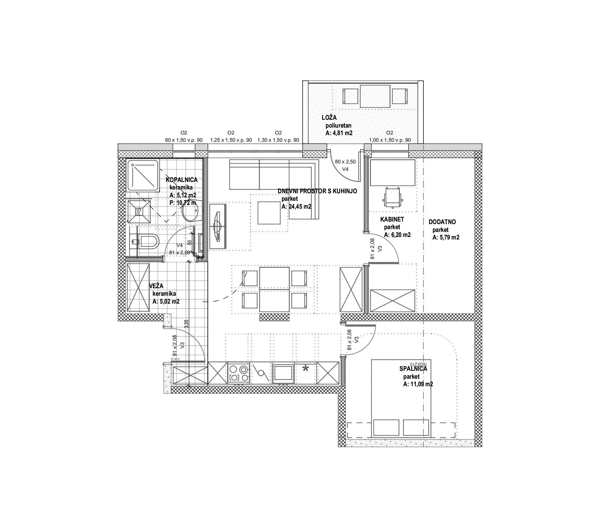
V objektu bodo stanovanja kvadratur od 40 do 100 m2. Objekt bo končan v drugi polovici leta 2024.

VELIKOST
40 - 100 m²
VRSTA
novogradnja
LOKACIJA
Žalec

Časovnica projekta

09. 01. 2023
PRIČETEK IZVEDBE DEL
01. 03. 2023
PRIČETEK IZVEDBE GRADBENIH DEL – KLET
01. 05. 2023
PRIČETEK IZVEDBE GRADBENIH DEL - OBJEKT
31. 12. 2023
KONČANJE GROBIH GRADBENIH DEL
30. 09. 2024
KONČANJE OBRTNIŠKIH DEL
30. 11. 2024
PRIMOPREDAJA STANOVANJ

Stanovanja

Vas zanima več o projektu?

Oglejte si spletno stran projekta

AKTUALNO

Poglej ostale

POGLEJ ŠE

Oglejte si vse projekte